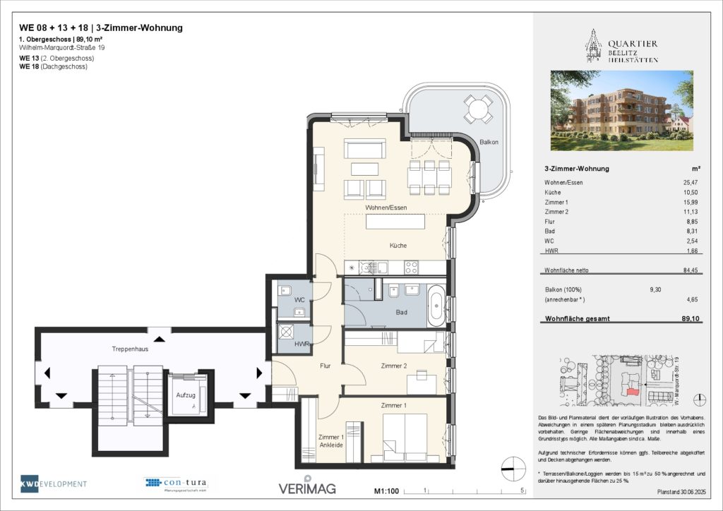
Wohnungen
DETAILVERLIEBT
Die aufwändige Architektur spiegelt die Fassadendetails und Stilelemente der historischen Gebäude wider.
Ob in den stattlichen Mehrfamilienhäusern am Ortszentrum, den Art déco Parkvillen am historischen Männersanatorium oder in kleinen Stadtvillen an der Waldseeallee – Wohnungseigentum im QUARTIER BEELITZ-HEILSTÄTTEN bedeutet helle und komfortable 2-, 3- und 4-Zimmer-Wohnungen mit Aufzug in alle Etagen sowie schönen Balkonen oder großen Terrassen mit Privatgärten. Viele Wohnungen sind barrierefrei und schwellenlos erreichbar.
Zum Parken stehen oberirdische Stellplätze sowie Tiefgaragenstellplätze – auch mit Ladevorrichtungen – zur Verfügung.
Kapitalanleger aufgepasst: Entscheiden Sie sich jetzt und profitieren Sie von der degressiven AfA.







Ausstattung
WOHNEN
Feinsteinzeug in den Bädern, Echtholzparkett in den Wohn- und Schlafräumen, Sanitärobjekte und Armaturen – bereits im Standard steht Ihnen eine sehr umfangreiche Auswahl an Materialien und Objekten zur Verfügung und ermöglicht Ihnen die Individualisierung Ihres neuen Zuhauses. Fragen Sie nach unserer detaillierten Baubeschreibung.




























